Asteria Clears Major Hurdle as Second Storyliving by Disney Community Begins to Come to Life in North Carolina
This marks the second Storyliving by Disney community, with no official plans of a third announced at this time.
Asteria, the next Storyliving by Disney community, has cleared a big hurdle in its development with a local town board approving the plat for the first phase of the new North Carolina development.
What’s Happening:
- The Pittsboro Town Board unanimously approved a preliminary plan earlier this week for the first phase of Asteria - A Storyliving by Disney community coming to North Carolina.
- Asteria’s General Manager Matt Dean reportedly introduced the project team to the board, but no further details about the second Storyliving by Disney community (after Cotino in Palm Springs, California) were offered at the time.
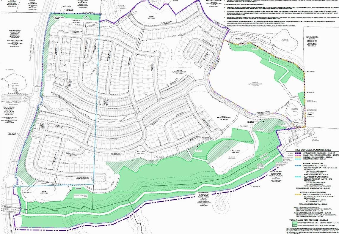
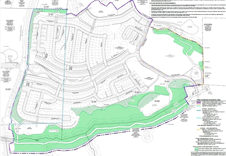
- The 217-acre preliminary plat for the community consists of 494 single-family homes, townhomes, duplexes, and quadplexes.
- 25 acres on Asteria’s eastern border have been designated as a “commons area," and the plat also shows more than 29 acres of open space and 18 acres of public park land.
- The commissioners reportedly did not ask any questions before voting 5-0, approving the plan. The project would only come back to the town board if there are major changes.
- Pittsboro town spokesman Colby Sawyer has said the town does not have a timeline for Asteria’s progress, but Disney officials have said the first Asteria homes could go on the market by 2027.
What They’re Saying:
- Matt Dean, Asteria General Manager : “We’re excited to bring forward this Asteria phase one preliminary plat application to the town and look forward to building a meaningful and long-term relationship with you for years to come."
More Asteria & Storyliving by Disney:
- The new Storyliving by Disney community, Asteria, is the second of these developments that Disney has announced.
- These residential developments are brought to life through a variety of home builders and developers, all working with Walt Disney Imagineering. When the projects are complete, the clubhouses and amenities are staffed by Disney Cast Members, delivering that level of service that the brand is known for.
- Right now, homes are already on sale at Cotino, the first Storyliving by Disney community near Palm Springs in Rancho Mirage, California. For more information on that location, be sure to check out our posts here.
- Asteria, located in Pittsboro, North Carolina, just outside of Raleigh, appears to have a different look and feel as opposed to Cotino’s desert-style landscaping and homes. The art, seen at the top of the page, features a lot of green space and tree-lined streets.
- While the news confirms the first phase’s 494 single family homes, the full plan for Asteria (according to the official website) calls for approximately 4,000 residences, with sales anticipated to begin in 2027.


